Description
GOAS – ANCIENNE FERME A RENOVER
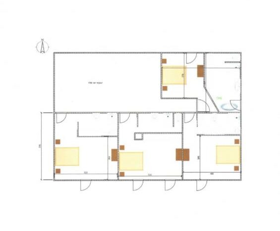
Charmante maison en état hors d’eau et hors d’air de 210m² située dans un petit village au calme avec vue imprenable sur les Pyrénées.
La maison est édifiée sur un vaste terrain de 3102m² sur les hauteurs de La Lomagne et bénéficie d’un environnement calme et serein entouré de nature.
Elle se compose de vastes espaces lumineux et aérés, idéal pour créer de grands espaces de vie.
06.51.66.28.36
ID de propriété: 61834
Prix: 169 000 €
Taille de la propriété: 210,00 m2
Pièces: 1
Contactez-nous
Programmer une projection?